- Woonoppervlakte
- Circa 60 m²
- Inhoud
- Circa 195 m³
- Bouwjaar
- Gebouwd in 2012
- Aantal kamers
- 2 kamers (1 slaapkamer)
Reageren op deze advertentie? Gebruik het formulier op deze website.
Licht en modern hoekappartement met balkon en privéparkeerplaats, centraal in Hoofddorp met Energielabel A!
Prettig wonen in dit moderne 2-kamer hoekappartement van ca. 60 m², gelegen op de 2e verdieping van het goed onderhouden complex “Aan de Vaart”. Het appartement beschikt over een zonnig balkon, een eigen parkeerplaats en een vrij uitzicht. De ligging is rustig aan de rand van Toolenburg, maar toch heel centraal.
Ligging
Op loopafstand vind je de bushalte met snelle verbindingen richting Amsterdam, Haarlem en Schiphol. Het winkelcentrum Vier Meren ligt dichtbij met een breed aanbod aan winkels, horeca, bioscoop en voorzieningen. Ook het NS-station is eenvoudig bereikbaar, evenals de uitvalswegen naar de grote steden.
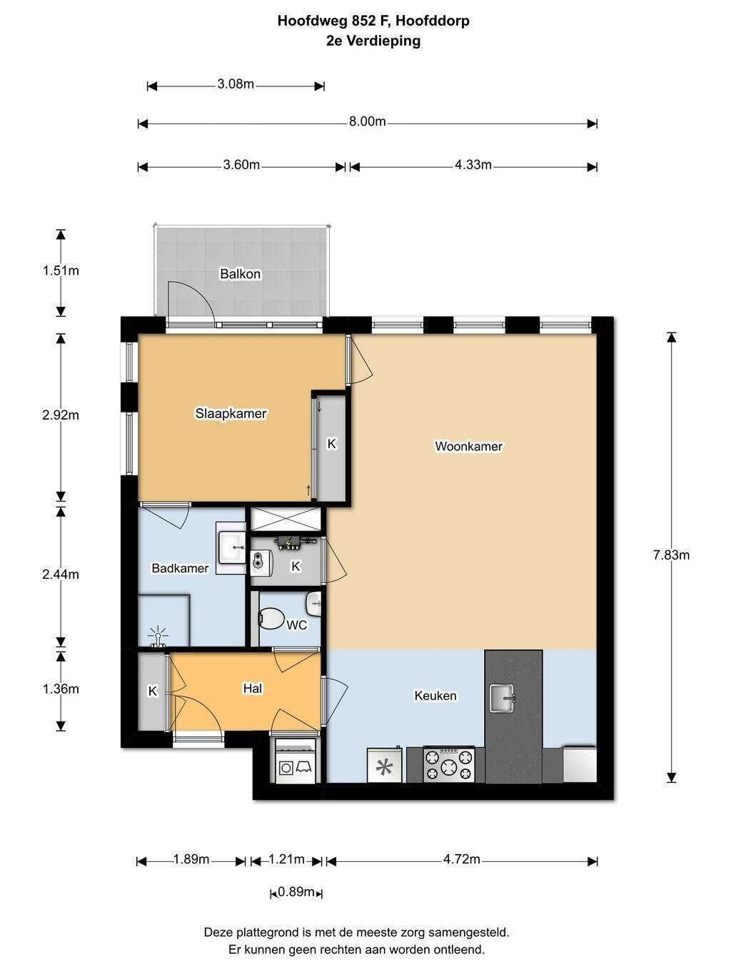
Indeling
Begane grond:
Gemeenschappelijke entree met bellentableau en videofooninstallatie, lift, trappenhuis, gezamenlijke fietsenberging en toegang tot de privéparkeerplaats.
Tweede verdieping:
Entree/hal met garderobe, toiletruimte met fontein, een ruime bergkast met aansluiting voor wasmachine/droger en een extra vaste kast. Vanuit de hal toegang tot de lichte woonkamer met grote raampartijen en toegang tot het zonnige balkon op het zuidwesten (middag- en avondzon).
De open keuken is luxe uitgevoerd met veel bergruimte (praktische schuiflades, apothekerskast), een ruim werkblad, bar en diverse inbouwapparatuur: 5-pits gaskookplaat met wokbrander en afzuigkap, Quooker, combi-oven, vaatwasser en koel-/vriescombinatie.
De slaapkamer grenst direct aan het balkon en de badkamer. De moderne badkamer (en-suite) is voorzien van een douche, wastafelmeubel en handdoekradiator. Vanuit de slaapkamer toegang tot het zonnige balkon, dat is gelegen op het zuidwesten en een fijn uitzicht biedt richting de Hoofdvaart.
Bijzonderheden
- Licht en modern tweekamer-hoekappartement met balkon en veel lichtinval
- Privéparkeerplaats op eigen terrein
- Gezamenlijke fietsenberging in de onderbouw
- Centrale ligging nabij (winkel)centrum, R-net, NS-station en Schiphol
- Woonoppervlak ca. 60 m²
- Bouwjaar 2012
- Actieve en gezonde VvE, bijdrage circa €171 per maand (excl. €15 voorschot water)
- Energielabel A
- Aanvaarding: in overleg
Reageren op deze advertentie? Gebruik het formulier op deze website. Lees de volledige omschrijving
Overdracht
- Vraagprijs
- € 375.000 k.k.
- Status
- Verkocht onder voorbehoud
- Aanvaarding
- In overleg
- Bijdrage VvE
- € 171,16 per maand
Bouw
- Object type
- Portiekflat (appartement)
- Soort bouw
- Bestaande bouw
- Bouwjaar
- 2012
- Soort dak
- Plat dak
Oppervlakte en inhoud
- Woonoppervlakte
- 60 m²
- Inhoud
- 195 m³
- Gebouwgeb. buitenruimte
- 5 m²
Indeling
- Aantal kamers
- 2 kamers (1 slaapkamer)
- Aantal badkamers
- 1 badkamer en 1 apart toilet
- Badkamervoorzieningen
- Douche, wastafel, en wastafelmeubel
- Aantal woonlagen
- 1 woonlaag
- Gelegen op
- 4e woonlaag
- Voorzieningen
- Glasvezelkabel en lift
Energie
- Energielabel
- A
- Energielabel registratie
- 29-08-2025
Buitenruimte
- Ligging
- Beschutte ligging en vrij uitzicht
- Balkon / dakterras
- Balkon aanwezig
Bergruimte
- Schuur / berging
- Inpandig
Garage
- Soort garage
- Parkeerplaats
Parkeergelegenheid
- Soort parkeergelegenheid
- Op eigen terrein
VvE checklist
- Inschrijving KvK
- Ja
- Jaarlijkse vergadering
- Ja
- Periodieke bijdrage
- Ja (€ 171,16 per maand)
- Reservefonds aanwezig
- Ja
- Onderhoudsplan
- Ja
- Opstalverzekering
- Ja
Indicatie hypotheeklasten
Eigen inleg:
Spaargeld / overwaarde
Rente:
Laagste 10-jaars rente
Laagste 10-jaars rente
2,73% - Centraal Beheer Groen... - NHG
3% - Centraal Beheer Groen Lee... - 80%
Laagste 20-jaars rente
3,18% - Argenta Groen Hypothee... - NHG
3,39% - Argenta Groen Hypothee... - 80%
Laagste 30-jaars rente
3,35% - Argenta Groen Hypothee... - NHG
3,56% - Argenta Groen Hypothee... - 80%
Hypotheek:
Bruto maandlasten: € 0 p/m
Netto maandlasten: € 0 p/m
Hoe berekenen we dit?
Het rentepercentage is gebaseerd op de laagste 10 jaars vaste rente voor één hypotheekdeel. De vermelde rente (2.73% met NHG) is gecontroleerd op 19-11-2025. Deze berekening is gebaseerd op een annuïteitenhypotheek die volledig wordt afgelost, waarbij de maandlasten gedurende de gehele looptijd gelijk blijven. De werkelijke rente en netto maandlasten kunnen variëren, afhankelijk van uw persoonlijke situatie en de hypotheekverstrekker. Raadpleeg een financieel adviseur voor een nauwkeurige berekening en advies. Aan deze berekening kunnen geen rechten worden ontleend; het dient enkel als indicatie.
Documentatie
Kadastrale kaart
Leefomgeving
2025-concept-begroting-2025
2024-concept-begroting-2024
2025-actueel-per-18-08-2025-financieel-jaarverslag-2025
Periodieke-bijdrage-per-appartementsrecht
2023-financieel-jaarverslag-2023
2024-financieel-jaarverslag-2024
Kostensoort-per-jaar-en-maand
Breukdelen
Aandeel-in-reservefonds-20-aug-2025
2025-begroting-grafiek
Verkoopbrochure
Woningborgcertificaat
Mjop-2010-2040-mjop-rapport-vve-aan-de-vaart-te-hoofddorp
Mjop-2010-2040-kapitalisatie-mjop-vve-aan-de-vaart-te-hoofddorp
2023-notulen-09-03-2023
2025-agenda-25-02-2025
2025-agenda-18-03-2025
2024-agenda-04-03-2024
2025-notulen-25-02-2025
2023-agenda-09-03-2023
2024-notulen-28-04-2024
2024-notulen-04-03-2024
2025-notulen-18-03-2025
2024-agenda-08-04-2024
Akte-van-splitsing-d-d-03-10-2011
Modelreglement-2006
Huishoudelijk-reglement-vastgesteld-d-d-31-05-2019
Aanvulling-huishoudelijk-reglement-vastgesteld-d-d-31-05-2019
Aanslag-gem-watersch-belasting-2025
Kad-kaart-haarlemmermeer-al-1938-a9
Aanslagbiljet-gemeentelijke-belastingen-2025
Kad-legger-eigendomsinformatie-haarlemmermeer-al-1938-a9
Eigendomsbewijs-afschrift-openbaar-register-hyp4-dl-75590-nr-165
Energielabel 2132mc-852-f
Plattegronden PDF
BAG uittreksel
Lijst van zaken
Vragenlijst Deel B
Bezichtiging
Bod uitbrengen
Waardebepaling
Zoekopdracht
Alles downloaden
Zonnegrenzen bekijken
Op de kaart
Inwoners in Hoofddorp
Cijfers voor postcodegebied 2132
- Totaal aantal inwoners
- 13035 inwoners
- Mannen
- 50%
- Vrouwen
- 50%
Inwoners in Hoofddorp
Cijfers voor postcodegebied 2132
- tot 15 jaar
- 14%
- 15 tot 25 jaar
- 14%
- 25 tot 35 jaar
- 30%
- 45 tot 65 jaar
- 23%
- 65 en ouder
- 18%
Huishoudens in Hoofddorp
Cijfers voor postcodegebied 2132
- Eenpersoons zonder kinderen
- 45%
- Meerpersoons zonder kinderen
- 26%
- Huishoudens zonder kinderen
- 71%
Huishoudens in Hoofddorp
Cijfers voor postcodegebied 2132
- Huishoudens met één kind
- 7%
- Huishoudens met meerdere kinderen
- 22%
- Huishoudens met kinderen
- 29%
Woningen in Hoofddorp
Cijfers voor postcodegebied 2132
- Woningen voor 1945
- 4%
- Woningen tussen 1945 en 1965
- 4%
- Woningen tussen 1965 en 1975
- 27%
- Woningen tussen 1975 en 1985
- 6%
- Woningen tussen 1985 en 1995
- 16%
Woningen in Hoofddorp
Cijfers voor postcodegebied 2132
- Woningen tussen 1995 en 2005
- 27%
- Woningen tussen 2005 en 2015
- 7%
- Woningen na 2015
- 9%
- Huurwoningen
- 50%
- Koopwoningen
- 50%
Overige in Hoofddorp
Cijfers voor postcodegebied 2132
- Gemiddelde WOZ waarde
- € 286.000,-
- Personen onder de 65 met uitkering
- 7%
Overige in Hoofddorp
Cijfers voor postcodegebied 2132
- Adressen per km²
- 1874
- Stedelijkheid (schaal 1 op 5)
- 80%
Indien u vragen heeft of u wilt een bezichtiging inplannen, dan kunt u gebruik maken van het formulier hiernaast. Er zal daarna op korte termijn contact met u worden opgenomen.
Camplaan 22
2103GW, Heemstede
Renske +316 220 737 05 / Tim +316 587 14762 hello@dutchbrickx.nl www.dutchbrickx.nlContact opnemen
Dutch Brickx Real Estate
Dutch Brickx is een ervaren makelaarskantoor dat al meer dan tien jaar actief is in zowel verhuur als (ver)koop van woningen. We hebben ons gespecialiseerd in het huisvesten van expats en andere woningzoekenden, maar bieden ook deskundige begeleiding bij het aan- en verkopen van vastgoed. Onze kracht zit in het combineren van lokale marktkennis met persoonlijke aandacht, waarbij we altijd streven naar de juiste match tussen verhuurder en huurder of koper en verkoper.
Ons team is actief in een groot deel van de Randstad, met een focus op Noord-Holland, Zuid-Holland, Flevoland en Utrecht. Denk aan steden als Amsterdam, Rotterdam, Den Haag en Utrecht, maar ook aan omliggende plaatsen zoals Leiden, Haarlem, Zoetermeer, Almere, Hilversum, en Amersfoort. Deze regio’s zijn populair vanwege de aanwezigheid van internationale bedrijven, goede bereikbaarheid en diverse woonmogelijkheden.
Of het nu gaat om tijdelijke verhuur of een definitieve koop of verkoop, bij Dutch Brickx staan we bekend om ons professionele advies en menselijke benadering. We geloven dat succesvolle bemiddeling draait om méér dan alleen cijfers — het gaat ook om goed luisteren, meedenken en maatwerk bieden. Zo zorgen wij ervoor dat elke woning een thuis wordt, en iedere transactie een stap vooruit.
Ben je op zoek naar een betrouwbare makelaar met hart voor mensen én kennis van de regio? Dan ben je bij Dutch Brickx aan het juiste adres.
Nieuwste reviews
-
Burgemeester Fremery Kalfflaan 19
Very good service from start to finish. Tim was attentive and anticipated every step in the buying process, making it a very smooth experien...
-
Arent Janszoon Ernststraat 771
We worked with Tim to find an apartment in Amsterdam. Tim is very knowledgeable about the market in AMST and helped us a lot to rule out pot...
-
Blekersvaartweg 72 A
Geweldige makelaar, zeer betrokken. Zet zich echt voor je in. Goede service. Geen min punten. Top makelaar.